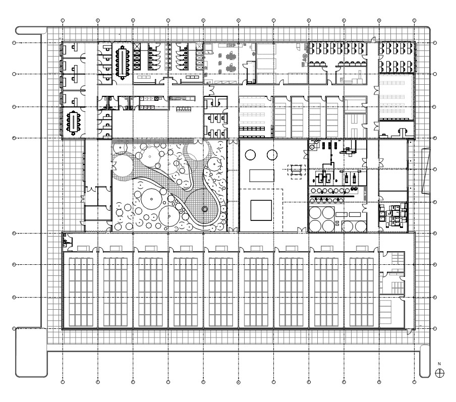
This 52,000 sq. ft. mock-up facility serves as a comprehensive demonstration of our firm’s technical and design capabilities in cannabis cultivation and manufacturing. More than a speculative study, the project distills years of hands-on experience into a single, fully developed prototype. It illustrates how we approach complex program requirements, regulatory compliance, and operational efficiency.Through carefully crafted spatial planning, integrated systems design, and high-fidelity visualizations, the mock-up reflects our ability to deliver forward-thinking, production-ready environments that align with the evolving standards of the industry. It stands as a benchmark of the precision, quality, and design intelligence we bring to every cannabis facility we undertake.

















